【AI大模型展】北电数智 星火·产业AI大模型矩阵——洞悉产业需求,落地真AI
“星火·大平台”产业AI大模型
该AI大模型由北电数智投递并参与数智猿×数据猿×上海大数据联盟共同推出的《2025中国数智产业AI大模型先锋企业》榜单/奖项评选。
北电数智“星火·大平台”以“1个AI底座+2大产业平台”为战略内核,通过深化“一地一策、一业一策”的产业赋能方针,深度整合产业生态资源,构建AI基础设施到推动产业数智化升级的完整链路。凭借全栈AI能力,“星火·大平台”深度洞悉不同行业需求,为企业提供从底层算力支持到上层应用开发的一站式服务。目前已在政务、医疗、AIGC、泛家居、工业及新兴行业等多领域落地,为各行业智能化发展打造可落地、可复制的“新样本”,为地方优势产业的数字化转型升级提供支撑,加速推动科技创新与产业创新深度融合。
应用场景/使用群体
北电数智“星火・大平台”以“1个AI底座+2大产业平台”为战略内核,其核心AI底座,已衍生出“星火・工业、星火・政务、星火・文化、星火・医疗”等AI底座,在全国多行业、多场景的落地。
在政务领域,星火·政务底座聚焦政务高频刚需场景,可实现政务知识问答、文案生成、表格智能分析等场景化应用,并集成满足政务安全与稳定性要求。以政务AI助手为载体,模型能够根据不同民众的理解能力,以通俗易懂或专业严谨的语言解答,让政务服务更加贴心、高效。
在医疗领域,星火·医疗底座聚焦“医、教、研、管”四大业务领域,“星火·医疗”依托全栈AI能力与医疗可信数据服务底座,构建了具备全科医学领域通识的医疗通识大模型及能与专业医疗知识库结合的不同学科的专病大模型,构建贯通数据要素激活、模型能力强化、场景落地应用的全链条医疗数智化体系,全面提升医疗效率和服务质量。
在文化创意领域,星火·AIGC底座支持数字创意、影视制作等领域的高质量创新,孵化优质AI创意内容,开拓AIGC赋能视听产业发展新场景;为不同群体提供从影视内容创作、拍摄、后期制作到宣传发行的全面支持。
在工业制造领域,星火·工业底座可赋能供应链智能管理、设备智能管理、产品智能报价、产销研一体化管理等场景。助力企业快速构建面向产品质量检测、设备预测性维护、设计工具对接等高价值工业场景应用,推动“研、产、供、销、服”全价值链智能化。加速企业数智能化升级。
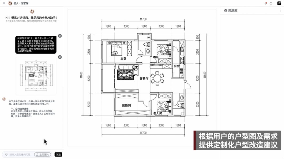
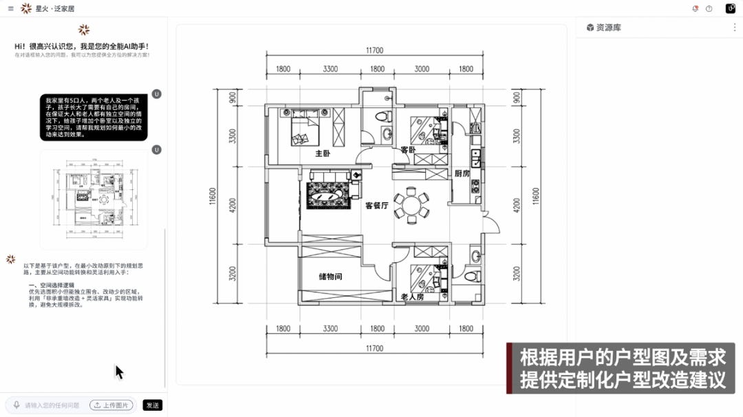
在家居产业领域,星火·泛家居底座构建了以AI深度赋能泛家居产业的前后端一体化解决方案,实现AI在设计、营销、生产到供应链的全链路能力集成,助力地方家居产业智能化升级。通过针对当地用户痛点进行专属模型训练开发,星火·泛家居底座打造了AI营销平台、智能设计平台、柔性生产调度引擎等应用,推动佛山泛家居行业向智能化、柔性化转型升级。
在前沿探索方面,星火·新兴行业底座聚焦推动具身智能在智能制造场景的深度应用,整合“数据工程、模型训练/部署、应用开发”于一体,以丰富精准的数据基座构建物理真实的仿真环境,以虚实融合的设计实现多场景模拟,不断提升机器人应对复杂场景作业能力和效率。
产品功能
星火·工业底座:提供了语言、多模态、3D生成、数字孪生、文生图、文生视频等垂类模型。通过AI可信数据服务深度整合多源工业数据,助力企业快速构建面向产品质量检测、设备预测性维护、CAD/CAE设计工具对接、智能排产、生产工艺参数优化、库存管理、PLC程序编写等高价值工业场景应用。
星火·政务底座:可实现政务知识问答、文案生成、表格智能分析等场景化应用。通过AI村支书的数字分身进行村史讲解、问答;百姓万事通:村民通过简单的语音或文字输入,即可获得专业的解答和实用信息;数字医生:提供辅助筛查、线上问诊等服务;游客助手:游客通过提问获得全方位的旅游服务。
星火·医疗底座:提供分级诊疗导航、基层医生辅助诊疗助手、AI多模态辅诊、数字人等创新应用和各类Agent应用,能与专业医疗知识库结合的不同学科的专病大模型,能为用户提供专病领域知识;在大型医院院外提供全周期智能交互服务,院内赋能诊疗全流程;在基层医疗机构辅助诊断、健康管理及上下转诊服务。
星火·长缨AIGC底座:支持数字创意、影视制作等领域的高质量创新,孵化优质AI创意内容。通过文生图、图生视频的模式,以全流程闭环、电影级质感、AI助理式服务重塑视听创作体验。
星火·泛家居底座:通过对当地用户痛点进行专属模型训练开发,构建前后端一体化AI解决方案,实现AI在设计、营销、生产到供应链的全链路能力集成。助力地方家居产业智能化升级。
星火·新兴行业底座:通过构建模拟仿真和模型训练平台,提供基于真实应用场景的训练场,以丰富精准的数据基座构建物理真实的仿真环境,以虚实融合的设计实现多场景模拟,不断提升机器人应对复杂场景作业能力和效率。
模型能力
当前,基础大模型的通用能力难以精准适配医疗、金融、工业等多元化产业的核心场景需求。根本原因之一在于专业领域模型构建的核心要素——深度融合行业Know-how的高质量专业数据面临结构性困境,如应用场景碎片化导致模型应用规模化受阻,数据烟囱导致高价值数据“供不出、流不动、用不好、风险高”等一系列难点,已成为制约行业智能化升级的核心瓶颈。
北电数智坚持聚焦人工智能技术在服务实体经济过程中的突出问题和关键瓶颈,如新阶段人工智能行业国产芯片商用难、大模型场景应用落地难和高质量数据价值释放难三大卡点,致力于打造面向未来的AI计算基础设施与生产力引擎,其“星火·大平台”依托“1个AI基础设施底座+2大产业发展平台”的创新范式,深度融合产学研用生态,加速推动人工智能与实体经济深度融合。作为国企新质生产力典范,北电数智深度洞察政府与行业AI应用难点,通过立足产业发展视角,深入供给并精准对接需求痛点,打通模型落地“最后一公里”,赋能国计民生关键行业数字化转型。
技术说明
作为AI时代原生的科技创新企业,北电数智洞察到AI落地产业的需求,从源头打造立体的全栈AI基础设施和生态。“星火·大平台” 由【宝塔·模型适配平台】【前进·异构计算平台】【红湖·可信数据空间】三大底层技术构成。针对算力、算法、数据这“AI三要素”,北电数智打造出一套立体分层的AI底座。
在算力层面,打造了推动国产芯片从可用到好用的“前进•AI异构计算平台”,这是通过混元异构的核心能力,率先构建国内大规模、高效能的国产算力基础设施,可实现对国产芯片的统一调度和纳管,激发不同国产算力在多种应用场景下发挥不同优势潜力,实现更高效、更高性价比的算力供给。
面向国产算力在智算中心应用的重要趋势,北电数智构建的国产算力PoC场景验证平台能为AI应用企业在具体应用场景中,精准匹配国产算力与行业模型/应用的最优组合。目前,北电数智已通过“星火·国产算力AI原生适配认证”技术体系,完成对十余种国产算力芯片的原生适配认证,将加速国产算力商业化落地进程,推动智算中心对国产算力广泛应用。
在算法层面,为满足各行业应用大模型的需求,北电数智提供的AI工具链“宝塔·模型适配平台”不仅 能向上适配各类软件,兼容各大主流开发框架,降低企业和开发者使用门槛。宝塔让开发者无需做固定选择,既可以选择主流的基础大模型,也可以采用开源模型,打破算法层面的“烟囱难题”,自由切换不同模型。也能向下适配硬件,将芯片与大模型广泛解耦并适配,使大模型能够“自如、流畅”地运行在不同AI芯片上;向上适配软件,兼容各大主流开发框架,降低企业和开发者的使用门槛。
在数据方面,北电数智通过提供全栈信创的可信数据空间底座,以保障数据存储、开发、可信使用、可审计、隐私保护、流通、托管等环节的可信数据产品和数据服务,有效解决数据价值挖掘过程中“供不出、流不动、用不好、风险大”的难题。
服务客户
基于“星火·大平台”衍生的“星火·政务底座”,北电数智打造的“乡村振兴幸福大模型”现已在北京市北沟村落地。该模型覆盖四大应用场景,包含AI村支书、百姓万事通、游客助手、健康管理等智能化创新应用,通过将人工智能、大数据与乡村治理场景的深度融合,“乡村振兴幸福大模型”有效提升了当地政务治理效率、缓解了当地基层医疗资源紧张、为当地居民提供了更多个性化服务,为该村开启了数智化治理的全新篇章。同时,北沟村政务数智化实践不仅推动了当地基层政务服务智能化、居民办事便捷化,通过辅助基层问诊优化医疗资源配置。也从技术方案到应用模式,为其他乡村乃至基层政务部门提供了积极借鉴。
基于“星火·大平台”衍生的“星火·医疗底座”,北电数智已为中日友好医院构建了从基础设施到应用落地的一站式AI医疗赋能体系。涵盖医疗可信数据服务、樱智·α专病大模型、樱智Agent开发平台。其为医疗结构提供从基础设施到应用落地的一站式AI医疗赋能能力,可提高医疗临床诊断准确率和患者就医体验。并且通过共建“医疗可信数据空间”,保护了病人数据隐私。同时推动了优质医疗资源下沉,助力提升基层诊断能力,助力分级诊疗。
基于“星火·大平台”衍生的“星火·AIGC底座”,北电数智联合北京移动、华为、华鲲振宇共同打造的AIGC视听产业创新中心与智算“文化+科技”平台,现已落地北京数字经济算力中心。
基于“星火·大平台”衍生的“星火·佛山泛家居底座”,助力万亿级规模的佛山泛家居产业集群数字化转型,北电数智通过构建面向泛家居产业的前后端一体化解决方案。已实现AI智能化在设计、营销、生产到供应链的全链路能力集成,推动当地泛家居行业从传统制造向智能化、柔性化转型升级,实现设计智能化、生产制造智能化、产业基因智能化,推动佛山打造“AI+工业制造”全国标杆,巩固优势产业领先地位,推动区域经济实现更高质量二次跃升。
基于“星火·大平台”衍生的“星火·工业底座”,北电数智打造的“骄阳·工业大模型” 在国内权威第三方评测机构SuperCLUE发布的中文原生工业大模型测评基准SC-Industry(SuperCLUE-Industry)最新榜单中,以83.44的总分综合排名第一,并在“应用能力”维度和“工业数据分析”和“工业智能体Agent”两个子项能力上均位居榜首。
关于企业
·北电数智
北京电子数智科技有限责任公司(简称“北电数智”)是北京电控面向人工智能领域布局的产业公司,是一家专注于原创性、颠覆性、引领性创新的人工智能科技企业。北电数智以“建设数字中国”为使命,以打造面向未来的AI底座和AI生产力引擎,推动下一代工业革命在中国加速到来为愿景,通过构建“1个AI底座+2大产业平台”的创新范式,以AI计算基础设施和AI数据服务实现基础能力破局,提供覆盖算力、算法、数据的全栈AI基础服务,打造AI底座;通过传统产业升级平台和新兴产业加速平台,构建覆盖政务、医疗、文化、工业制造等服务国际民生的垂类模型矩阵和聚焦低空经济、具身智能、AI4S等前沿领域的共性技术平台,打造产业升级加速新引擎,促进产业AI化发展和AI产业化创新。












